Description
- 5 Bedrooms
- Well Presented
- Utility Room
- Downstairs W/C
- 2 En Suite Shower Rooms
- 2nd Reception Room
- Double Garage
- Driveway Parking
- Good Road Links
- Sought After Village Location
Set on the edge of the highly sought-after village of Long Itchington, this well-presented and spacious five-bedroom detached home offers exceptional versatility throughout. Benefiting from excellent local amenities and convenient transport links right on its doorstep, this impressive property has much to offer its next owners.
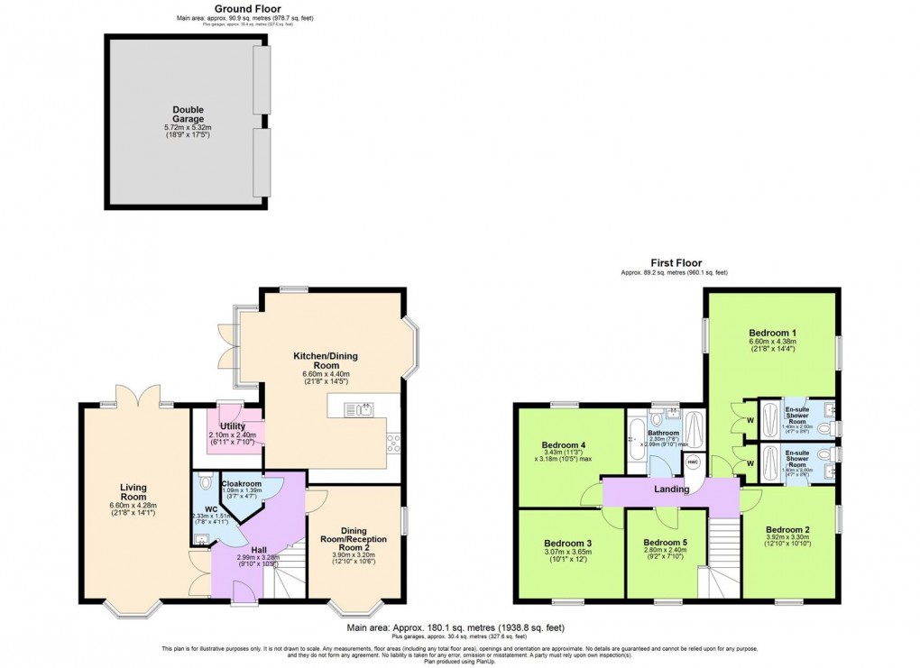
Ground Floor:
-Upon entering the property, you are welcomed into a central entrance hallway featuring a sizeable coat cupboard and a convenient downstairs WC. This inviting space provides access to all principal rooms within the home.
-Stretching from front to back, the attractive lounge benefits from a bay window to the front and French doors to the rear, allowing the room to be flooded with natural light and creating the perfect space to relax in the evenings.
-Situated at the rear of the home is a modern, open-plan kitchen/diner, which conveniently provides access to the rear garden via French doors. Truly the heart of the home, the kitchen is fitted with a comprehensive range of wall and base units and benefits from integrated appliances including a fridge, freezer, electric oven, gas hob, dishwasher and wine cooler. With ample space for a family dining table, this versatile area offers the ideal setting for entertaining guests and enjoying family mealtimes.
-The kitchen also provides access to a practical utility room, offering additional fitted storage, a hand basin, and under-counter space for white goods, along with separate access to the rear garden.
-The downstairs accommodation also includes a versatile second reception room, currently used as a children’s playroom, but equally suited to a home office or formal dining area.
First Floor:
-The main bedroom is a generously sized double at the rear of the home, offering the luxury of built-in wardrobes and a modern en suite shower room.
-Bedrooms two, three, and four are all generously proportioned double rooms, with bedroom two also benefiting from a modern en suite shower room.
-Bedroom five, located at the front of the home, is a large single room that would also make an ideal home office or nursery.
-The family bathroom is conveniently located close to all bedrooms and is finished to a high standard, in keeping with the rest of the home. This well-appointed space includes a separate bath and shower cubicle, hand basin, WC, and a heated towel rail.
Garden & Exterior:
-The enclosed rear garden provides a secure and private space to enjoy the summer months, featuring a patio area, lawn, and decking, all complemented by mature foliage borders.
-The property also benefits from a detached double garage with electrics, along with driveway parking for up to four vehicles.
-This attractive family home also benefits from gas central heating and double glazing throughout, and is set amidst the picturesque South Warwickshire countryside. With excellent local amenities nearby, it offers the perfect balance of rural charm and community living.
Important Property Information:
Tenure : Freehold
Local Authority: Stratford On Avon District Council
Council Tax Band: G
EPC: B
Maintenance Fee: £200 per annum
Disclaimer
It is our intention to ensure that the information on these particulars are as accurate as possible. However, please be aware that in some instances the information hasn’t been available. Therefore, it is advisable to contact the office prior to viewing the property especially if there is something that requires clarity and we will be happy to confirm with the vendors. It is recommended that all the information provided is verified by an independent conveyancer. Photography is a representation of the property for visual purposes only.
Viewing - Strictly by appointment only with the appointed agents Inside Homes.
Floorplan
EPC
To discuss this property call our branch:
Market your property
with Inside Homes
Book a market appraisal for your property today. Our virtual options are still available if you prefer.
